Zweifallenschlösser: Sicherheit und Komfort
05.02.2026 – MTS-Team
In der heutigen Zeit sind immer mehr Sonderlösungen in den Bereichen Zutrittskontrolle, Brandschutz und Notausgänge gefordert. Für einige dieser Problemstellungen kann das Zweifallenschloss eingesetzt werden. In diesem Beitrag erfahren Sie, was dieses Schloss auszeichnet und wo es am Besten eingesetzt wird.
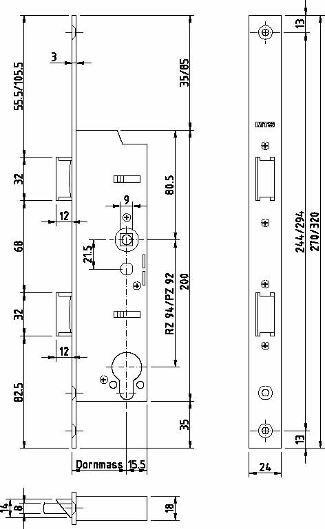
Was ist ein Zweifallenschloss?
Im Gegensatz zu einem herkömmlichen Einsteckschloss mit Falle und Riegel, besitzt ein Zweifallenschloss zwei Fallen.

Die Funktionsweise
Die wichtigsten Vorteile auf einen Blick
Anwendungsbeispiel
Problemstellung
Treppenhaus –> Garage
Zutritt ist immer möglich ohne zusätzliche Bedienungselemente
Garage –> Treppenhaus
Fluchtweg – jedoch geschützt vor Zutritt durch Unberechtigten (EN 13637)
Lösung
- Zweifallenschloss-Panikschloss mit der Panikseite auf Seite Treppenhaus – dadurch ist der Zutritt immer möglich
- Fluchttüröffner auf der unteren Falle, Freigabe über Nottaster an der Wand – Türe lässt sich in einer Paniksituation von der Garagenseite öffnen, der Zutritt für berechtigte Personen mit dem Schlüssel ist immer möglich

Fazit
Mit dem Zweifallenschloss können die verschiedensten Zutrittslösungen ausgearbeitet werden, was das Schloss zu einer exzellenten Lösung macht in der heutigen Zeit, um die komplexen Anforderungen zu erfüllen.
Wenn Sie weitere Fragen haben oder Unterstützung bei der Auswahl des passenden Zweifallenschloss für Ihre Anwendung benötigen, stehen wir Ihnen gerne zur Verfügung.
Kontaktieren Sie uns, und wir beraten Sie kompetent und individuell!
